-----------------------------------------------------------------------------------------
Point information à date
Travaux, circulation, stationnement en cours
Circulation et Stationnement à Vannes en vertu des arrêtés municipaux
Décembre
-----------------------------------------------------------------------------------------
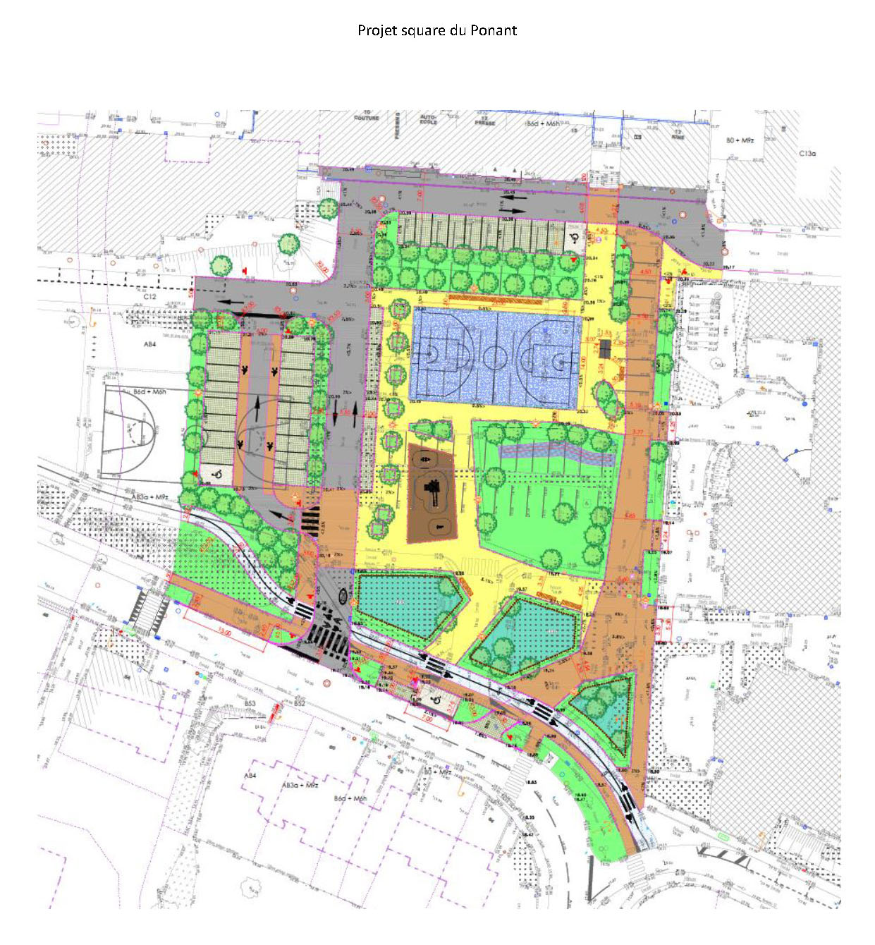
Requalification des espaces publics du square du Ponant
Le Square du Ponant
La situation
Cet espace aujourd’hui est un parking planté d’arbres qui ont du mal a pousser. Par ailleurs il n’y a aucune continuité d’espace publique entre la place Fareham et la partie sud. Absence d’un parvis piétonnier de distribution de l’école. De plus une bonne partie des voitures stationné sur ce parking pourrait se stationner en sous-sol. Un sous-sol de 109 places de stationnements jouxte la place. Ce parking aujourd’hui n’est pas agréable et sécurisé. Seule une petite dizaine de voitures s’y gare.
Le projet de requalification des espaces publics du square du Ponant au sud a pour objectifs de :
- Végétaliser ces espaces afin d’y créer des espaces de qualités et écologique
- Créer des usages qui ne sont pas existants aujourd’hui et d’en faire des lieux de lien social entre les habitants
- Offrir des équipements nouveaux au quartier que ce soit sportif, ludique et festif
- Réduire la place de la voiture en surface (au sud) pour créer un square de quartier
- Réhabiliter le parking sous-sol de 109 places et inciter les habitants à y stationner
- Assurer la desserte de l’école Cliscouët de façon plus rationnelle
- Créer une centralité de quartier par une structure d’espace public piétonniser entre
le Nord et le Sud
Ce qui va y être créé :
Un square de quartier piéton et accueillant différent équipements

- Ce square fait une surface de 5 500 m2
- Une prairie en partie centrale est créée et d’usage varier et libre d’appropriation.
- Un banc d’une quinzaine de mètres de long en béton y sera construit.
- Piétonniser la déserte de l’école et y créer un parvis de distribution
- Au Nord s’implante un terrain multisport dédié au foot et basket. Ce terrain sera très ouvert sur le quartier
- À côté de la prairie est créée une aire de jeux pour la petite enfance avec une structure filet, une cabane avec un toboggan et un jeu à ressort.
- Au sud les mini-forêts sont confortées, elles créent une lisière entre le square et la rue de Surville. De plus elles ont un rôle important dans l’infiltration des eaux pluviale. En effet la gestion des eaux pluviales du square est d’infiltrer l’ensemble des eaux de ruissellement et de tendre vers le zéro tuyau EP.
- Une table de ping-pong PMR y est installée
- De nombreux bancs et banquette y sont installés
- Le Square est fortement végétalisé d’arbres tiges de grande taille afin d’y créer une ambiance forestière afin du luter contrer les îlots de chaleur. Et créer un espace puits carbone afin de lutter contre le réchauffement climatique.
- En Rive du square est aménagée une rue qui accueille un dépose minute de 5 places et un parking de 30 places de stationnements pour une desserte de l’école amélioré et rationnalisé.
- La rue du Ponant accueillera 8 places de stationnement complémentaires
- Ainsi l’objectif est de faire un square écologique, durable et résilient face au changement climatique.
- Réhabilitation du parking sous-sol : Peinture, éclairage, badge d’accès, sécurité afin que les résidents s’y garent. Ces travaux ont été réalisés par Morbihan Habitat de novembre 2024 à mars 2025
Les deux premières phases du chantier
La première : du 5 mai au 20 juin

La seconde : du 30 juin au 1er août

Démarrage du chantier du square de Ponant en mai 2025 – Livraison novembre 2025
Budget : 725 000 € TTC
-----------------------------------------------------------------------------------------
Gare routière du FOSO avenue Paul Cézanne
Requalification du HUB des Cars du FOSO (Travaux d'aménagement)
Démarrage le 17 avril - Livraison le 1er septembre 2025

1. Le contexte
La gare routière du Foso permet la dépose des passagers et les correspondances pour les cars vers les établissements scolaires (compétence GMVA et Région Bretagne)
- Le « Hub » cars scolaires du Foso voit passer plus de 30 cars sur une période de 25 minuts
- Sur des temps très courts jusqu’à 16 cars en simultané.
- Problème important de sécurité des élèves avec dépose et cheminement entre les cars, accentué en hiver par la nuit.

2. État des lieux

- Deux quais passants + une « voie » cars
- Une emprise avec une structure de chaussée fortement dégradée (sous sol argileux/vasard – ancien lit de cours d’eau)
- Voie VL parasite traversante pour la sortie du centre sportif du Foso servant de dépose minute aux parents
- Éclairage insuffisant
- Pas de quais aux normes PMR
3. Ce qui va être réalisé
- Création de 5 quais sécurisés dont deux passants pouvant accueillir 16 à 18 cars
- Reprise de la structure et revêtement
- Sortie CS Foso intégrée dans le carrefour à feux
- Nouvel éclairage avec Leds
- Déplacements et création de places PMR
- Infiltration des eaux pluviales, suivant GEPU de GMVA.
- Création bandes cyclables sur P Cézanne
Le planning :
- Démarrage vacances de printemps 2025
- Livraison 1er septembre 2025
- Travaux réseaux GMVA préalables (EU et AEP) au chantier du Hub av. Paul Cézanne > fév/mars/avril
- Coordination avec GMVA et Région Bretagne afin d’assurer la continuité de desserte pendant la période scolaire et la sécurisation des élèves.
Financements :
- 60% GMVA
- 30% Région Bretagne
- 10% Vannes
Phase 1

Phase 2

Phase 3

Phase 4

Phase 5

Livraison

Livraison

-----------------------------------------------------------------------------------------
TRAVAUX ET STATIONNEMENT AU NIVEAU DE LA GARE
Point d'étape : janvier 2025
Actualité du chantier
L'entrée de l'avenue Favrel et Lincy en travaux à partir du 20 janvier

Le projet d'aménagement du Pôle d'Échanges Multimodal est entré dans sa dernière année de construction. En ce début d'année, les travaux vont débuter dans l'entrée de l'avenue Favrel et Lincy (au sud gare) et sur le parvis Ouest du bâtiment voyageurs.
Les travaux prévus :
- réaménager les espaces publics
- reprendre le mur en pierre qui longe le parking P1
- créer une piste cyclable bidirectionnelle
- rénover la voirie : trottoir et chaussée.
À noter que la circulation sera maintenue pendant toute la durée des travaux.
Toute l'actualité du chantier
Inscrivez-vous à la newsletter pour vous tenir informé de l'actualité du chantier : inscription.
Aménagements cyclables du boulevard de la Paix
La ville a aménagé pendant la période du COVID une corona-piste sur le boulevard de la Paix entre le place de la Madeleine et la place Stalingrad.
Cette piste provisoire a contribué au développement de la pratique du vélo à Vannes.
L’objectif du projet aujourd’hui, élaboré en concertation avec les associations de cyclistes, est de pérenniser et améliorer l’aménagement en créant une piste cyclable bilatérale d’un kilomètre entre le giratoire du Palais des Arts et la Place de Stalingrad.

Les travaux consistent à créer de chaque côté du boulevard une piste cyclable d’une largeur de 1,75m comprenant une bordure séparative avec la voie destinée aux automobilistes. Les deux voies actuelles permettant la circulation automobile du Palais des arts vers la place Stalingrad sont conservées.
Les travaux sur le boulevard de la Paix sont prévus de nuit de mars à mi-juillet, suite aux travaux de réseaux d’eau potable réalisés par Golfe du Morbihan Vannes Agglomération entre le Palais des Arts et l’avenue Victor Hugo.
Les cyclistes bénéficieront d’un aménagement bilatéral dès le démarrage du chantier, une signalisation directionnelle spécifique sera mise en place au niveau du Palais des arts. Les deux sens de circulation générale seront maintenus en journée, des déviations de nuit seront mises place en fonction de la zone de travaux suivant le principe général ci-dessous :

Pendant les travaux de voirie jusqu'à fin décembre, l'accès difficile et limité aux riverains.
Merci de votre compréhension, la Ville s'efforce de limiter au mieux la gêne occasionnée.
Élu rattaché